Just Listed

Lifestyle Living on 15.4 Acres with Stunning Rural Outlook

 

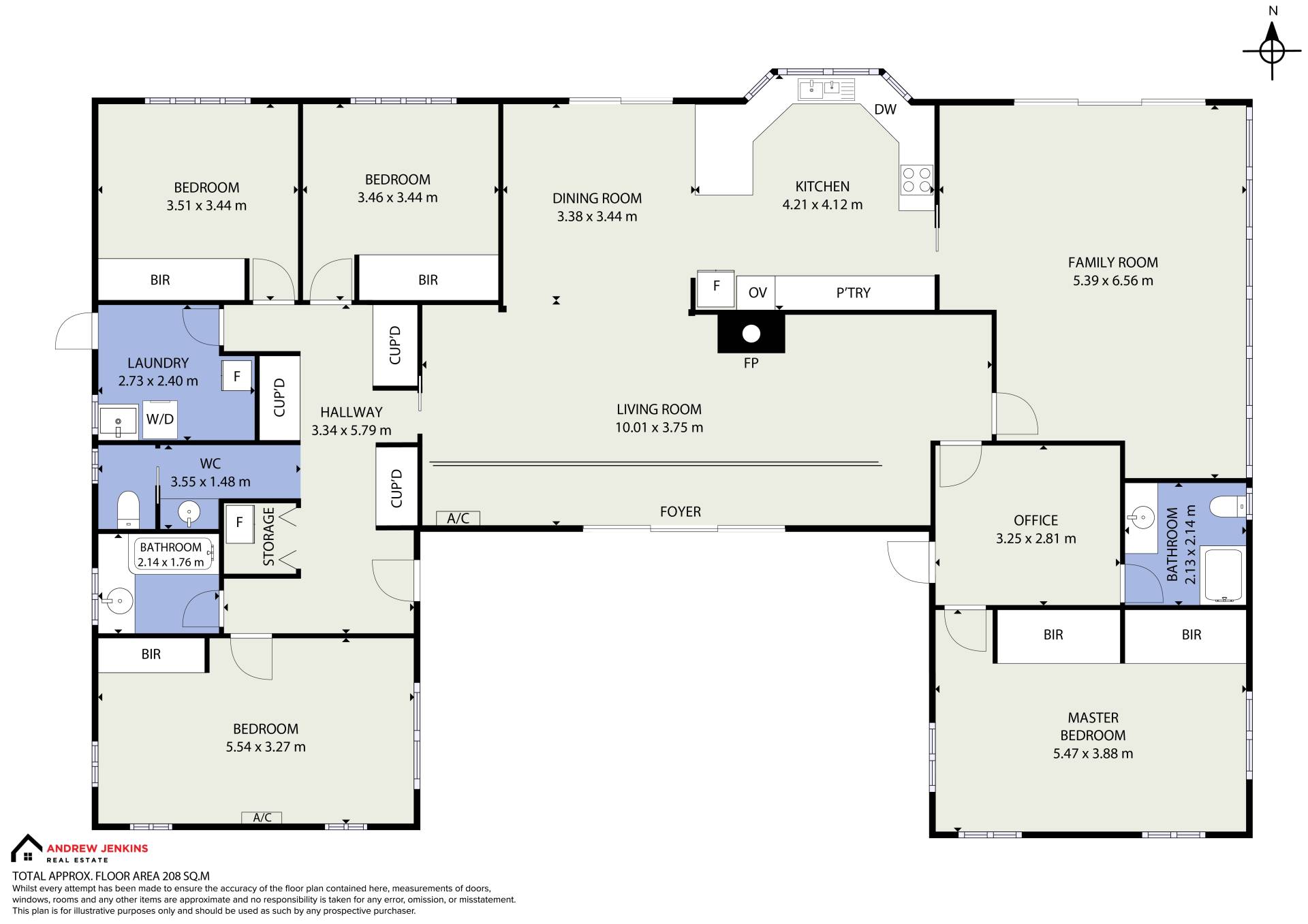
Set upon on a gentle rise surrounded by rural countryside, this very well-maintained four-bedroom residence offers space, privacy and an unbeatable rural lifestyle. Featuring exposed beam cathedral ceilings and a classic wrap-around bullnose verandah, and ample shedding the home delivers comfort, character and plenty of space.

Inside, the master bedroom includes built-in robes, a parents’ retreat or study, plus a private ensuite with shower and toilet. The remaining three bedrooms are all generous in size and fitted with built-in robes.

The well-appointed kitchen boasts a large bay window, ample storage, electric oven, dishwasher and breakfast bar. It overlooks the light-filled living area complete with wood fire and split system air conditioner, while a separate lounge provides an additional space for relaxation or family time. The main bathroom includes a combined bath and shower, and there’s also a separate laundry.

Entertaining is a breeze with the impressive 7x8m outdoor area featuring a rangehood, reverse-cycle split system and ceiling fans perfect for year-round use. Shedding is well catered for with a 7x10m (approx.) lock-up shed with concrete floor and power, plus a five-bay machinery shed.

The property is further enhanced by a domestic bore, well-fenced paddocks including one under sprinklers, and frontage to a sealed road. With 15.4 acres to enjoy, this is an outstanding opportunity to secure a spacious lifestyle property with room for animals, hobbies or simply to relax and enjoy the views.

A quality rural holding with everything at your fingertips don’t miss it call today to arrange a viewing!

 

 

These details have been prepared to assist solely in the marketing of this property. While all care has been taken to ensure the information herein is correct, we do not take responsibility for any inaccuracies. Accordingly all interested parties should make their own enquiries to verify the information.

4 2 5 6.22 ha
Address 104 Barnes Road, Cobram
Price $1,290,000
Property Type Residential
Property ID 5224
Category Acreage Semi-rural
Land Area 6.22 ha

Agent Details

Andrew Jenkins photo

Andrew Jenkins

0428 570 717
View Profile
Jake Jenkins photo

Jake Jenkins

0428 217 898
View Profile