The Best of Both Worlds – Rural Living on the Edge of Town

 

Tucked away on over two acres close to town, this property delivers the space you’ve been craving without giving up convenience. Whether you're after room for the kids to roam, space to store the caravan or boat, or simply a peaceful place to call home, this one ticks all the boxes

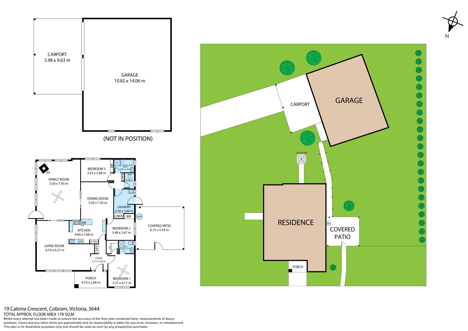
The spacious three-bedroom, two-bathroom home has been thoughtfully updated and is ideal for families or anyone craving a bit more room. The well-appointed kitchen features ample cupboard space, a breakfast bar, and adjoins light-filled living spaces including a cosy front lounge and a separate family room with wood heater perfect for chilly nights.

The master bedroom includes a walk-in robe and stylishly renovated ensuite, while the two remaining bedrooms are both generously sized with built-in robes. A second renovated bathroom, separate toilet, and large laundry add to the home’s family-friendly functionality.

Step outside and enjoy entertaining under the 5x6m covered area, or take advantage of the huge 11x15m Colorbond shed – complete with concrete floor, power, and a solid fuel heater – ideal for tradies, tinkerers or extra storage.

Additional features include:

  • Ducted reverse cycle split system air conditioning
  • Domestic bore and sprinkler system
  • Established gardens and plenty of open space for kids, pets, or even a pony!

Located in a prime position, this property offers the feel of country living with all town amenities just minutes away. It’s the lifestyle upgrade you’ve been waiting for – don’t miss it!

 

 

These details have been prepared to assist solely in the marketing of this property. While all care has been taken to ensure the information herein is correct, we do not take responsibility for any inaccuracies. Accordingly all interested parties should make their own enquiries to verify the information.

3 2 4 8,552 m2
Address 19 Catona Cres, Cobram
Price $795,000 - $845,000
Property Type Residential
Property ID 5118
Category House
Land Area 8,552 m2

Agent Details

Andrew Jenkins photo

Andrew Jenkins

0428 570 717
View Profile
Jake Jenkins photo

Jake Jenkins

0428 217 898
View Profile