Sold

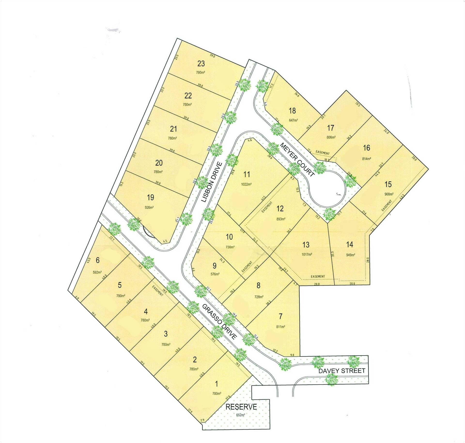
GRASSO DRIVE ESTATE - LOT 14 ONLY

LOT 14 ONLY

Brand new Cobram housing estate! 

Within close proximity to Murray River bushlands in a quiet area and close to town.

Now in a large variety of blocks ranging in sizes from 576m2 to 1022m2. Fully serviced including gas, water, sewerage and NBN is also available. 

Sealed roads, footpaths and street lighting.

Be quick as these wont last. Perfect for Families, investors or first home builders!

CALL NOW!

949 m2
Address Lot 14 Meyer Court, Cobram
Price SOLD for $175,000
Property Type Residential
Property ID 4016
Category Vacant Land
Land Area 949 m2

Agent Details

Andrew Jenkins photo

Andrew Jenkins

0428 570 717
View Profile