Prime Location! Great Business Opportunity

Situated in a great location opposite Cobram McDonalds and Subway. Great opportunity to start your business adventure!

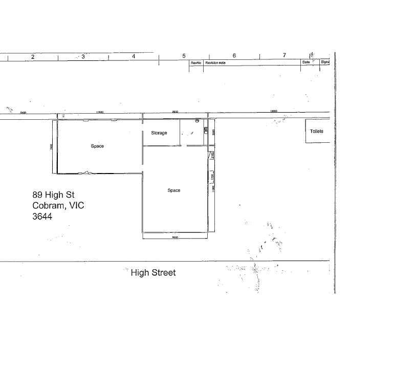
Formally known as the Cobram dry cleaners, this shop could suit many different business types from bakery to workshop or even a restaurant!

Great size showroom 7400x11820

Storage, work space, large rear yard, toilet, kitchen/ tea room, air conditioning, HWS, x3 roller doors, 3 phase and single phase power, telephone line and water supply!

Available approx. August enquire today will go fast.

See plan attached for size and layout.

 

1 1
Available Leased
Address 87-89 High St, Cobram
Price $350pw plus outgoings
Property Type Rental
Property ID 2806
Category Warehouse

Agent Details

Amanda Ramsay photo

Amanda Ramsay

0439 533 292
View Profile